不请装修公司的住宅装修日志

装修是大事,普通人一辈子也没几次装修的机会,不请装修公司,自己做工头难免踩坑,相信会是宝贵的实践经验,所以以日志的形式记录下来。 持续更新中…

装修是复杂工程,涉及到的零杂项目很多,每一项都它的门门道道。

装修公司把这个复杂工程做了封装,而接口就是他们的设计师和监理,但也带来了不透明的问题,所以一些人会选择撇开装修公司自己装。

虽然复杂,但怎么说也不像软件工程一样混沌,有人指点的前提下还是有信心自己做好的。

先说清一些情况

自身情况

  • 2016年交房至今一直空置,主要是当时刚毕业,一直攒不下钱装修
  • 房子在南宁,而我一直在外地工作,对装修的事也没上心,直到周边配套成熟之后,市场上租房需求旺盛,租金也上来了,一直放着觉得怪可惜的,于是决定把房子装起来

为什么会选择不请装修公司,自己装修?

父母的朋友有自己装修过几套房的经验,家里人很动心,我简单做了一些功课,觉得自己 hold 得住,就铁了心这么做了。

风格?预算?

日式现代简装;预算,设计费用+硬装+基本的家具不做柜子,10-15万;装修好打算先出租,后面如果回家再自己住,所以会按自己住的标准做设计、做硬装,而其他方便更换的东西都尽量往出租屋的级别看齐。

具体怎么操作?

自己请设计师出施工图纸,自己联系工人施工,自己把控好施工工艺,再由工人来列材料清单,自己去建材市场买材料;联系设计师是我本人,具体施工由我的父母负责(因为我一直在外地)。

为了尽量让读者理解中途可能遇到的困难,日志会尽可能细致地还原当时时间点遇到的状况、做出的一些决策,所以文章会显得啰嗦,请见谅。

户型介绍和装修风格

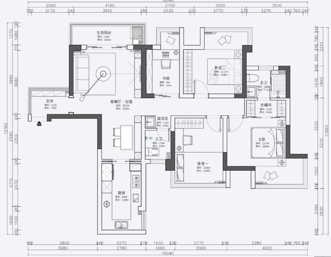
小高层的低楼层,住宅面积115平,套内100平,原始户型图:

套内100平,硬是塞下了四个房间+三个阳台+两个卫生间,结果就是各个空间都很极限,各卧室都是属于做了柜子就难放下1.5米床铺的尺寸,但是飘窗 真 的 是 很 大

注意,开发商给的平面布置图里的物件比实际尺寸小了一圈,比如看下面的次卧,宽度标的3米去掉墙算2.8米,一般的床长2米,图中的只有约1.7米,普通成年人睡个觉脚都要伸出来的长度。

先看布局:

  • 进门先是个很迷你的入户阳台,已经入住的邻居,基本会选择封阳台作为玄关;
  • 然后到客厅,宽度够放个三座的沙发,距离电视4米也可以有不错的观感,尺寸虽小但不影响功能;
  • 迷你尺寸的餐厅+厨房+生活阳台;餐厅,走道占去一部分空间,厨房,开发商给出的平面布置是个约3米的U型台面,实际用起来空间会比较局促,因为我喜欢自己做饭,这会是设计的重点
  • 儿童房,最小的一间房,飘窗也小,打算当书房
  • 下面那间次卧,飘窗很大,得好好利用
  • 主卧的形状别扭,过道长长

实际看房

  • 采光和视野:主卧和飘窗小的次卧,视野和采光最好;景观阳台对着小区内部花园;飘窗最大的次卧对着楼体自身;入户阳台也没什么视野,封了一点不可惜;
  • 通风:站在客厅,感觉通风十分的好,因为南北朝向吧

客厅:

餐厅:

厨房和生活阳台:

过道:

主卧飘窗:

2021-04-14 建立自己的初步构想

自己做了初步设计,当时也没想好要不要请设计师,总之想着要先有自己的一些想法。要

风格

日式简单装修,「让人感到放松的、朴素的」,大量白色打底+原木色为基调,风格参考:

家具风格参考:

少做吊顶,需要筒灯时可以直接外露:

玄关:

参考: https://www.isibasi-koumuten.com/gallery_house/house_h29u.html

换气方案

南宁很潮湿,每年3、4月份更是潮湿到溢出,就是所谓的“回南天”,所以一直很想让自己的房子用上新风系统,不用开窗就能换气,顺便维持室内湿度。

先看了吊顶新风

优点:

  • 空气净化、带湿度控制,保持室内空气干爽舒适
  • 热交换,空调效能提高
  • 不用开窗,室外的灰尘进不来,打扫卫生频率降低

缺点:

  • 初装贵,除了新风机,还要布管道,大概需要多花3万起步;
  • 走管需要过吊顶,降低层高,也增加了费用;
  • 不是装上之后就能愉快地一直用下去的,管道需要注意保养,比如需要定期更换过滤网,一旦管道被污染就很难处理,因为是隐蔽工程

综合考虑考虑到房子大概率要出租,初装和维护成本都属于不必要承受的,只能放弃吊顶新风。

然后研究了壁挂式新风,好处是不用布管,但效果不如吊顶新风,也难以维持室内湿度,似乎和我的初衷不符。

如果不想开窗,还有一种选择,换气扇,比如松下的FV-10PH3C:

房间之间可以通过安装换气孔实现空气流通:

换气扇便宜,带一定的过滤功能,而且会有点噪音,也算是备选方案。

电位

  • 到每个房间、客厅电视柜的线,各走2根管,一根管走网线(纯铜超五类线)、一根预留空管,放一根占位用铁丝(日后用于光纤音视频等用途预留)
  • 到吸顶无线AP的网线,各走1根管的网线,并配上电线

参考:2020年再谈家庭网络布线

地面

  • 做踢脚线
  • 玄关阳台厨房卫生间瓷砖(约22平)
  • 全屋复合木地板(约60平),考虑房间之间直接铺通(后面打消了这个念头,后面再说怎么回事)
  • 飘窗安装人造石

客厅

  • 直线吊顶
  • 不考虑音箱布线,之后可使用无线音箱方案
  • 电视柜从简,不做背景,找个差不多的成品电视柜
  • 空调看位置只能在电视柜的上方了,注意空间…

餐厅-厨房-阳台

这三个区域得放在一起考量:

  • 原方案:厨房小

  • 方案A:改餐厅到厨房的墙、拆生活阳台的墙,厨房改双排;优点,厨房可用台面变大,生活阳台也保留;缺点;餐厅动线严重受影响,需要靠边摆放餐桌,不然平时得绕过餐桌才能到达厨房

  • 方案B:只打掉生活阳台的墙;优点是厨房从5平变到8平,宽敞了不少,而且餐厅的角落能做柜子;缺点是没专门晾衣服的地方了,得把景观阳台变为生活阳台

  • 方案C:打掉生活阳台,厨房也改双排,得到一个最大的厨房;方案AB的缺点同时存在

为了验证方案A是否能安排下想在厨房安装的电器,嵌入式的洗碗机、消毒柜、烤箱,尝试着自己做了厨房柜的布局,结论是可以放下,但备料空间比较局促:

为了做布局图,关于尺寸的问题还是花了不功夫查资料的,这里是总结的一些需求:

需求:

  • 想根据橱柜的设计确定电的位置,方便做水电改造,所以需要个简单的橱柜布局设计
  • 需要做吊柜,吊柜做到顶,不要留缝隙
  • 台面的挡水条要一体的
  • 烟道左侧做电器柜,做足插座
  • 灶台左侧安排一个放调味料的拉篮
  • 台下水槽,至少沉200mm,PP材料下水管
  • 嵌入式电器尺寸
    • 烤箱(600x590mm)
    • 洗碗机(600x800mm)
    • 消毒柜(600x590mm)
  • 冰箱宽度留够730mm
  • 考虑厨下直饮水和垃圾处理器,留2个插座
  • 注意入户燃气位置,留热水器的插座
  • 台面插座留足,小家电很容易占满插座

尺寸相关参考商品:

尺寸相关参考资料:

卫生间

公共卫生间

  • 考虑做干湿分离,空间局促就算了.. 做的话不买成品淋浴房:淋浴帘用玻璃,地板用石材

主卧卫生间

  • 卫生间入口藏在主卧柜子里,拉门轨道在厕所内
  • 不做干湿分离,设定上不常淋浴
  • 做较大的柜,大镜子,镜子前记得做灯

平面布置

  • 保留生活阳台,厨房改双排,台面加长到我能接受的程度了;但对应的,从客厅到厨房的动线被影响了;
  • 餐厅旁做的柜子是考虑到弱电箱的位置,网络设备需要用柜子来放,比如光猫、交换机和他们的电源;
  • 次卧和客卧,放1.2宽的床比较合适;
  • 主卧用柜子遮住卫生间门口;

跑本地的建材市场和家具城看了下材料价格

  • 一般的瓷砖30-50一平
  • 复合地板90一平,水洗110-130一平包安装
  • 入户房门1000-2500,普通厚实的2000,卖家说一些品牌在锁上下重料所以贵,而门本身可能差不多
  • 房间门800-1000一套,实木拼接;厕所门800左右;厨房门定制约500一平
  • 厨房柜800-1000一米,面料基本都是石英石,柜体材料石头和木头差价不大,高度正常是80-85(90的话要补差价)
  • 铝扣吊顶100-120一平
  • 小号马桶500-700
  • 家具五金在家具城溢价很高,网上买划算

2021-06-27 请了设计师

做了很多功课,但对施工是一点经验都没有,虽然网上能查到一些大体的步骤但感觉巨多细节没提到。

所以决定请设计师,能指导着我们施工的那种;正好一同学是设计师,聊了一下,她觉得不请监理也行,就是我父母要常跑工地,麻烦点,家里觉得可以,就这么定下来了。

设计费用按设计面积算,会设计到的地方就会算面积,每平120元,从量房到出施工效果图需要约一个月:

  • 先量房
  • 几天后,设计师给出平面设计图方案,确定平面设计方案,交一半的设计费用;
  • 设计师开始做施工图、效果图,第一稿出来大概需要半个月时间,然后需要和用户沟通,直到效果满意;
  • 结清剩下的费用,设计师给出完整的设计图、效果图大图;
  • 后续施工中设计师跟进,指导施工步骤;对影响最终效果的步骤,比如水电改造环节,会帮忙和工人交底、验收

装修公司,如果只设计不找他们施工的话,会收双倍设计费用,而私下请设计师会便宜一半。

顺便研究了下当地请监理的情况,按工程费用总数的百分比收费,负责联系工人、交代施工、验收、施工过程中会到场几次。

2021-07-11 和设计师敲定平面布局

设计师给出了两个平面方案

方案一:厨房改U字型,最高的空间利用,景观阳台变为生活阳台;公卫洗手池到外边实现干湿分离;把书房改小为卧室二腾出柜子空间,也使房间适合放双人床,从两边下床都方便;

方案二:改生活阳台,宽敞的L型厨房,台面也足够用,必要的话可以在台面对面放上置物架;改主卧门口,加宽主卧空间,还收获一个大衣柜,但卫生间对着床尾,梳妆台对着床,主卧的门也对着过道

设计师会很耐心地把设计思路、设计的优点缺点考量都过一遍,设计师会注意到一般难注意到的点,比如:

  • 床靠边放,如果有两个人睡,靠内睡的人起夜就困难,所以要考虑功能——会不会有两个人睡这间,比如父母会不会一起住;
  • 如果分租,少一间房,租金就少了一份;
  • 公卫的洗手池放在外边可以减少争抢厕所的情况;
  • 沙发、床铺的朝向,需要考虑窗外景观

研究了好一阵最终敲定的是这样的布局:

  • 厨房是考虑动线和餐厅好做柜子,加上L型台面已经够用,就不做U型了

  • 对于房间的改动,主要还是舒适性拉满了,尽可能地多挪出一点空间,麻雀再小也是肉了

  • 主卧的改墙,吃了一截过道的面积让房间宽敞了些,卫生间门只是对着床尾,门口对着过道没对着入户门也不算穿堂,梳妆台可以用这种翻盖式的,还能顺带给物品防尘:

关于风格,这一阶段设计师会给出一些意向图让客户选择,好确定风格方向:

2021-08-01 和设计师定施工图

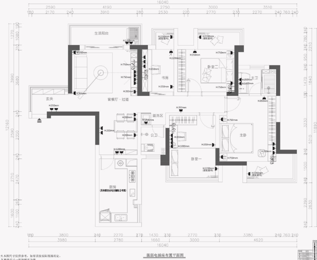
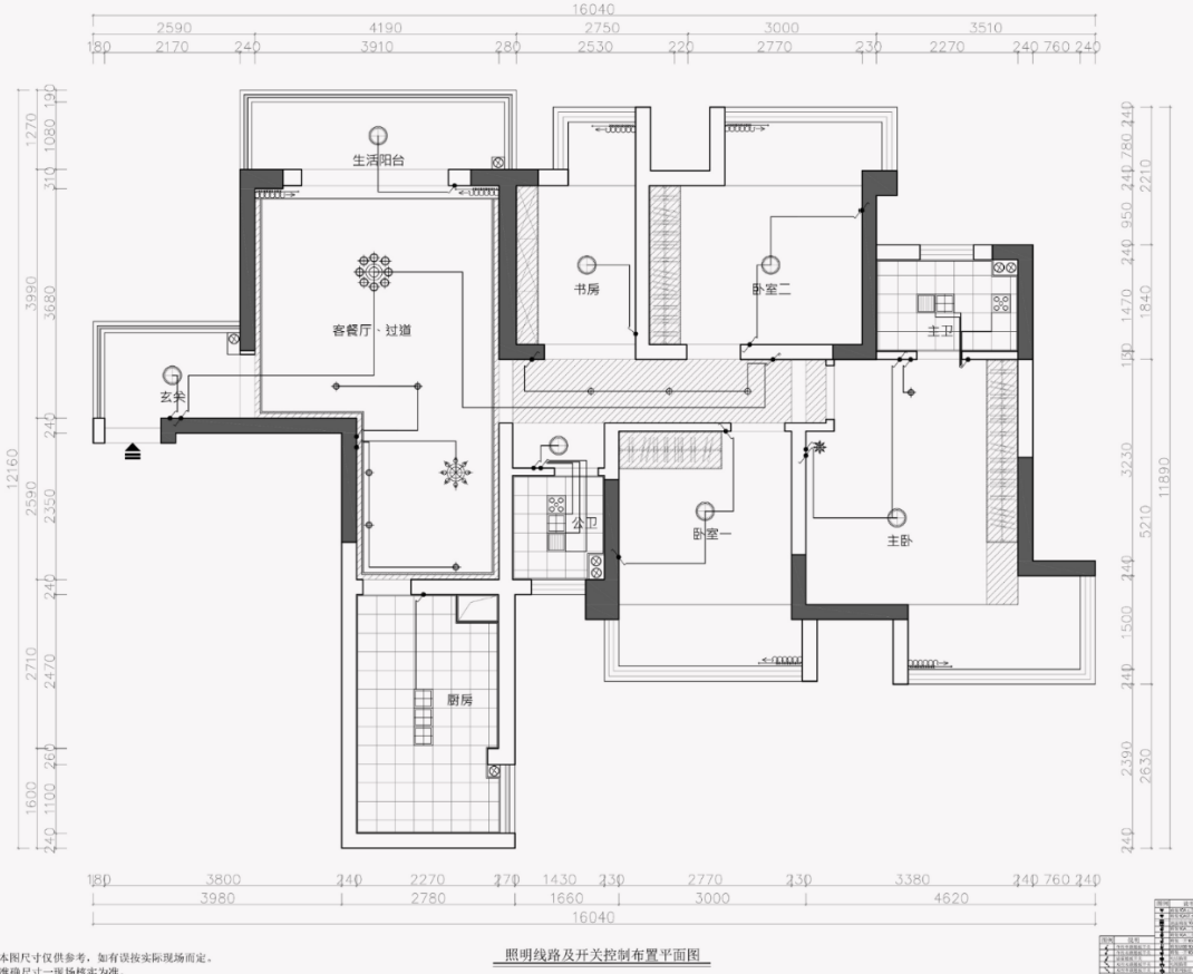
第一稿施工图效果图出来了:拆墙图、砌墙图、地面铺装图、强弱电位图、给水点位布置图、天花板布置图、照明开关控制布置图。

确实会有很多施工图,怪不得设计师说平面布置定稿了之后尽量别动了,宁愿先想好晚点再确认也不迟,毕竟一动平面设计,这些图都要改。

看了基本没什么问题,就是客厅灯的开关,放在过道的尽头有点不合理,改了就没什么了。

然后到效果图:

给出的效果图和我心中的“日式现代简装”有挺大差距,不够放轻松,日式元素显得有些用力过猛,提出的改进方向:

  • 减少日式风格的灯饰、少用饰面板比如床头的木板
  • 多功能房的床头的柜子方向错了,不做嵌入式的组合书柜,就放一个不带书架的普通的实木书桌
  • 衣柜使用原木色表面
  • 餐厅不要做饰面板的墙,把柜子做高

2021-08-11 完成设计

设计阶段,家里人总会有各种顾虑,比如“改这么多墙,会花很多钱吧”、“开发商原来这么设计的,也有他的 打算吧”、“别家都不改,就按别家的来做得了”;只能说方案都是各有侧重的,最重要的还是想清楚房子的用途,如果自住,就要想方设法地让设计倾向于更宜居,毕竟平面布局直接影响到居住体验。

定方案的过程中,和家里各种争吵、妥协,最费精力的还是在人上面,对于这个我是一点办法都没,毕竟施工不是自己弄,辛苦的是家里人;如果你不是自己掌控施工,在决定不请装修公司之前一定要想清楚了,家里人的配合程度如何,愿不愿意承受掉头发伤脑筋。

设计师给出了最终的工程包,没啥问题我就结清了尾款。

施工图没什么好贴的,效果图更新了:

2021-08-17 厨房的考量

考虑厨房的问题,设计到这里我才意识到,按现在装修公司的设计方式,室内设计师一般是不负责设计厨房水电的,而是交给更专业的厨柜公司,所以需要去找橱柜公司拿水电位设计方案。

听起来挺简单,但实际操作起来遇到了困难:品牌橱柜公司不做石材柜体,而路边小店不会提供水电设计。

南宁很潮湿,虽然颗粒板柜体是主流但一旦工艺材料跟不上,该坏的还是会坏,所以还是想做耐用省事的石材柜体,而且感觉花了大价钱还买不到自己想要的材料,觉得很不值。

材料优缺点很多文章都有提,现在最常见材料是石英石+颗粒板:

  • 台面材料:人造石英石、大理石、不锈钢、实木板等
  • 柜体材料:颗粒板(刨花板)、多层板、实木板、石料等
  • 柜门材料基本是木材基材:实木板、三聚氢胺板、吸塑板、UV漆板、亚克力门板、晶钢门板

能定制橱柜的地方:

  • 厨房定制橱柜公司(也就是品牌橱柜),会给你各种套餐、风格选择,套餐一般包括一定长度的台面柜体吊柜,高柜和五金另外收费;也有完全分开计费的方式,台面、柜体、吊柜、五金会分开计费
    • 找志邦问了方案和价格,质保十年,材料就是常见的石英石+颗粒板,台面、柜体都是每米一千多左右,4米大概1.3w;高柜印象中是5000一米,0.6米算3000;五金基本500-800一件,而我需要抽屉x3拉篮x2转角拉门x1;统下来大概2万多
    • 还找了爱阁工房,让售前估价,说估不出让我到门店实际看看
  • 路边小门店,台面+柜体800-1000一米,吊柜也差不多价格,柜体用颗粒板/花岗岩料,价格都差不多,一万以内能下来

总之结论就是,现在品牌橱柜公司不接石料柜体的定制,应该是出于品控和方便定制的考虑——他们可以在自己的自动化工厂完成定制,再依托现在方便的物流服务送到用户手上。感觉就是经历了一次产业升级,定制、安装不便的石料柜体只能在路边小店或者自己找工厂做了。

了解了一圈,还是发挥了下传统手艺,打开CAD软件自己简单做了设计:

同时,水电位也就有了:

可以简单算出,台面4.2米,高柜2.3米高,吊柜能做2米左右。

设计师指出我的设计的一些问题,还帮在施工图上加了电位:

  • 电器柜的两个插座没错开,因为要在墙壁上不能走横槽,所以必须错开
  • 台面的插座可能不够高,现在是100cm,因为要考虑挡水板10cm,加上台面可能不止80cm高,所以改到了120cm

2021-08-24 开始施工

施工前,需要去物业审核施工图纸、交管理费;还让物业安排一块临时堆放建筑垃圾的区域,砸墙会产生大量建筑垃圾,如果有堆放地就可以先堆放后清运;家里讲究开工时间的话,还要先提前看好日子(汗)。

还有记得开通水、电,燃气开户申请装表,这些开发商可能帮开好户了,但还是要用户去完善信息,开通户号才能交费使用,具体情况问物业和邻居,部分操作能在手机上完成,建议去营业厅前先研究一下免得浪费时间。

总算是正式开工了,物业那边帮接了电,设计师到现场定位改墙、定水电位。

施工工人是一个小团队,包揽改墙、水电改造、卫生间防水回填包管装便盆等,是我妈的朋友之前用过觉得手工过得去的工人,手工费用:

  • 水电改造,按房屋面积计算40一平
  • 打墙,单砖墙35,双砖墙50一平;砌墙,130一平
  • 包管,180单管,250双管
  • 卫生间,安装便盆250一个,刷防水10元一平,回填800一个卫生间

先是拆除、改墙,再到水电。

设计师朋友从现场回来之后,给我打了通电话,提到担心的一个风险,就是我们请的水电改造工人,如果是按照建筑面积计价,可能会走“野马风格”,也就是工艺怎么便宜怎么来,所以要我们和工人确定一下工艺。

最后我们和工人重新定了计价方式,要求按照我们指定的施工方式走线,15元一米。

设计师对水电走线工艺的建议是:

  • 水管走顶,漏水时能及时发现
  • 电线套管,用管卡固定,每个管卡之间不超过80cm,确保线管不松动变形
  • 只存在横纵方向走线,墙上只有竖槽;线管的拐弯处用大弯工艺,保证抽线灵活,后期方便维护
  • 强弱电分离,交叉处做屏蔽处理

贴出设计师给的资料包里的装修步骤:

2021-08-28 确定一些细节

打了墙之后不砌墙?

妈来了通电话,问书房和卧室间的墙,打了之后是不是可以考虑不砌墙了,只用柜子隔着,省事省钱又省出空间:

怕柜子隔音不行,不冒这个险,pass。

封阳台

考虑到做完水电之后的事,就到封阳台、换窗户,是时候把封阳台的方式定下来了,需要封的地方是这两处:

入户阳台:

先看一下楼上邻居封的,栏杆未拆,加上了防盗网,在内部封了落地窗:

决定直接照搬方案,但未超过护栏的部分使用固定的玻璃,上面是活动的窗,留通风的余地。

再到厨房的窗:

看这个样子,可以考虑拆除护拦,或者直接在护拦内砌墙,与包后的管子形成一个整体,再在砌的墙上装对外开的窗。

还没有方案的燃气管道

厨房里还有拿不定的是燃气管道,表该装在哪、怎么走管、隐蔽工程怎么做,这些目前还看不到,所以打算分多步走:

  • 请燃气公司的师傅上门实地看,给出建议,燃气表该装在哪、怎么走管、隐蔽工程怎么做之类;
  • 让水电师傅该开的槽开好,再联系燃气的师傅上门走管;
  • 做完隐蔽工程,后面装用器设备,再叫师傅上门装表、接线;

水管

营销和价格最厉害的是伟星,大厂有日丰、金德、联塑等,这些看着评价都差不多。材料基本上用PP-R,似乎网上有提到这种材料温度低于5摄氏度不宜施工和使用,南宁就不用考虑这问题了,主要还是看施工的质量吧,验收时要加压。

水管的规格有4分、6分管,等着看师傅要买哪种了。

另外打算装个前置的金属水滤,带反冲清理功能的,滤除一下大颗粒,看了评价说慢道这牌子性价比不错,百来块钱。

2021-09-03 拆除工作

开始了第一步的拆除工作,这一步要把该拆的都给拆了,我这套要拆的主要是墙和部分外墙瓷砖。

墙打完了,心累,说说打墙过程中遇到的一些破事。

邻居说她家楼板开裂了

拆墙拆到一半,楼下的业主就通过物业找到我,说你家昨天开始打墙,今天我回家发现天花板开裂了,快让人来看一下。

心里一惊,拆个墙怎么会让别人天花板裂了… 根据多年远程 debug 经验,可能是个现象描述,也许只是墙表面涂料开裂了… 再去搜了案例,还真有过装修敲裂楼板的,赔了钱还要自己花钱修复楼板。

立马联系师傅让去楼下看,回头说谈妥了,只是震动导致表面开裂,到时候帮修复一下就好。虚惊一场。

工人把带钢筋的墙给拆了… 拆了… 拆了… 拆了!

拆双砖的墙,一定要给工人提前打预防针!如果遇到钢筋水泥一定要停下来和你确认,别搞得像我一样受惊吓…

拆完了工人才说,打到这里遇到了一小段带钢筋的柱子,说按照施工图是要拆除的,但打了是不要紧的,所以直接打了:

问了建筑行业的人才放心,说二次结构(就是做完承重结构才加上的一些不承重的结构)的柱就不要紧,属于构造柱,主要是为了防止墙体开裂… 我和家人还是不放心,打算用拆下的钢筋补回一根柱子。

回头看,拆除工作最麻烦的就是这书房和卧室间的墙了,要是一开始知道施工会这么麻烦,大概就会妥协,选择微调…

拆厨房-原生活阳台的墙遇到了梁

施工图“拆除到原顶”,但实际上遇到了梁,从天花板下来有 40cm。

这倒不成问题,净高2.8M,吊顶拉平40厘米还有2.4M;和设计师确认,也说没问题。

2021-10-09 水电改造前

敲完墙之后一直停工,师傅去装其他户了,零散接活的师傅会有这个问题,他有活就会接,怕出现空挡。现在师傅终于得空列单了,国庆后开始砌墙、做水电。从9月到现在做的事:

  • 去南宁中燃,开通报装交费,700+元
  • 购买轻质砖,水泥、细砂,2000+元,用于砌墙和后续地面找平
  • 购买水管、下水管、走电线用的管;全用的金德,声称终身质保;水管用它家的纳米蓝色管,外层蓝色内层白色,全用的热水管;一共4100+元,列单时师傅会多写一些,记得和商家确认,用不完是要退的(2021-11-30备注:做完水电改造后退回没用到的料667元,加上中途买的材料,实际花了3600元左右)
  • 网上购买前置水滤,买的慢道QZ06,400+元
  • 购买电缆,南宁银杉,还没买

师傅列的水电改造的材料单/商家的发货清单:

买到的料:

来聊一下,自己请工人真的又好又省吗

这段时间一直在思考,自己请工人能做到又好又省吗?自己装修应该以什么形式比较合适?虽然开始装修了再提这个问题也有点晚了,但之前对于装修公司的认知还是不足,所以心里也没个谱。

先说优点,也就是——自己充当监理,直接与做工的工人沟通,能精确控制细节。

再到缺点:

  • 要处理的事情很多很杂——联系师傅、谈工艺谈价格、师傅列清单后去买材料、到现场收材料;每个工序的开工前交底、现场监工、完成后验收,全都要自己完成;期间还可能会冒出各种意想不到的事要处理,比如现场和设计图有冲突需要临时做决策,比如需要补救前面没做好的工序
  • 议价能力弱,装修公司可以让工人一直有活而散客不能,价格低的活工人不愿意接活,比如打墙师傅,你只打个3平米的墙,别人带着装备跑一趟就赚个百元
  • 经验不足,验收困难——工序是一环扣一环的,前面没做好会影响到后续工序的效果,比如地面找平没做好,到最后铺木地板时才会发现,这时你可能已经联系不上找平的工人了;再有个极端的例子,有人被瓦工忽悠,地砖当作墙砖铺上了墙,直到安装步骤才发现钻头根本钻不动,墙上想挂个全身穿衣镜都得钻半天
  • 自己找的工人,做工速度会慢一点,这类师傅会同时接几家的活,确保一直有活干;想要快也是可以的,每天都到工地,看着干活,人没到就电话催

目前我觉得,比较好的方式是「做装修公司做的事」,而不是「做包工头做的事」,装修公司做了什么?

  1. 售前招揽生意,让设计师给出免费平面设计、帮做大致的预算
  2. 签了单子,让设计师出具体的稿子、效果图,并和客户确认效果
  3. 施工过程,买材料,让施工队入场施工

可见,装修公司起到了「客户」「设计师」「施工队」间的粘合剂,努力从「客户」手中多拿钱,再努力少给「设计师」和「施工队」钱;我们能做的,是尽量把自己带入装修公司这个角色。

同事的80平出租屋硬装预算单

同事考虑把一套投资性的房子装修起来出租,找的施工队给的预算,设计、材料、工艺都不讲究的那种装法,硬装4万7。

2021-10-17

这周一总算开工了

购买电缆

电线用量不大,懒费心思,跟师傅说了直接拉满,找了本地口碑好的品牌,让水电师傅列的单:

1
2
3
4平方:红色x2卷,蓝色x2卷,黄色x2
2.5平方:红色x1卷,蓝色x2卷,双色线x2卷,黄色x1卷,绿色x1
电工胶布x10

(2021-11-30更新,后面又买了两卷408元,共花费3732元)

稍微了解下电缆,摘一段(https://zhuanlan.zhihu.com/p/70495873):

常见的家装电线横截面积有六种——1.0、1.5、2.5、4.0、6.0、10.0,单位都是mm2。常说的1.5平方、2.5平方指的就是1.5平方毫米和2.5平方毫米的电线。其中最常用的就是1.5、2.5、4.0、6.0四种横截面积的电线。

横截面积越大的电线,可承载的功率越大,即负荷越大。若是用细电线承载高于其额定功率的负荷,会导致线路温度过高,进而导致铜芯的氧化或熔断,严重时会引燃外壳绝缘层或外层PVC线管,引发火灾。

  • BV:俗称硬线,只有一根铜芯。
  • BVR:俗称软线,由多股铜丝绞合成一股铜芯。
  • RV:也叫软线,比BVR线更软。由更多的铜丝绞合成一股铜芯,相同直径下,RV的铜丝股数比BVR的铜丝股数更多,每股铜丝更细。

同等横截面积下,多股铜丝的软线承载的电流较大,但是对于普通家用来说并没有太大含义,因此在家用电线的选择上一般选择BV硬线。

这里是买了 BVR 才去了解,家装的话 BV 和 BVR 两种都用得多。其中 BV 是硬的,更便宜,难施工(难穿管),但相对更安全,寿命更长,师傅会偏好 BVR 因为软线更好施工,还是用 BVR 吧,网上的帖子都说 BV 施工起来太麻烦了。

师傅说不要把线材堆在工地,怕丢,要用了再少量来取。

补漏,买了个入户水阀

开发商给每户配的水阀不在室内,室内维修水路要关水就很麻烦,之前没考虑到这点,没买水阀,现在补买一个。

做了点功课,家装的水阀一般用两种,球阀/截止阀:

球阀拧个90度就能开关,用起来方便;截止阀通常要拧好多圈,但更便宜,据说一般寿命更长。

给个图片和价格参考,金德的铜球阀230元,不锈钢截止阀75元:

师傅的建议是用截止阀,说现在PPR管都是热熔焊死的,如果之后坏了,截止阀可以直接换阀芯,而球阀不能。所以最后购买了截止阀。

2021-10-19

检查电位图施工图,发现几空调插座全漏了,联系设计师帮重新出了图,和师傅对了一遍电位。

和水电师傅明确水电改造的要求

虽然之前和师傅谈好了走线的大致要求,但准备施工了,还是要再提一次细节,而且网络走线只有点位也没细化。

  • 横平竖直走线,水电均走地
  • 水和电都要从墙上打孔进入卫生间;卫生间内电路走顶
  • 照明电路的开关,记得留零线,方便日后做智能家居改造
  • 网线走管要按照示意图来做,管内预留铁丝,拐弯处做大弯,防之后抽不动线

(2021-11-28添加)这里漏了考虑了一点,导致后面客厅的双眼皮直线吊顶难实施,强调一下,在做灯光电路布置前,一定要研究好吊顶具体的工艺/材料/施工费用。

家庭网络布线

考虑到把网络设备全塞在弱电箱里不现实,网友也已经踩过很多这方面的坑。

弱电箱在餐桌旁,一开始的设想是在那放一个矮柜,但本来就小的餐厅就会变得更挤了,最终设计是把入户光纤从弱电箱拉到电视机柜,网络设备放在电视机柜里,再从这里分别接入各个房间。

(红色线是入户光纤,绿色线是网线)

生活阳台改阳台后封墙

直接在原来的围栏内砌了一截墙,之前已经让燃气公司帮把燃气管从上面移了下来,之后直接封窗就行了。

更换空气开关、漏保开关

参考:浅谈家装中的强电配电设计 篇一:空开、漏保及回路布置

开发商配的开关:

全屋的电线都换了,空开的功能就是防过载,能过多大电流的线就要配对应电流大小的空开,2.5方线对应16A,4方线对应32A,显然和我换后的线不匹配,而且这看着螺丝都有些生锈了,还是换掉比较安心,这配电箱看着也简陋,一起换了吧。

考虑空气开关这种东西,坏了也能很快地替换,只要产品合格就问题不大,对比了各品牌价格和口碑之后,决定用德力西的。

2021-10-22

楼下邻居把我的入户阳台下水管给切了

现场在接水管,水管从原本的入户阳台入户:

接水管时流出了些水,发现绿色箭头指着的这个下水堵了,里面塞了些塑料啥的,怀疑是楼下邻居把这里堵上了,于是找物业帮忙看一下,师傅二话不说就把水管疏通了,然后告诉我们,这里是个回水弯,楼下私自把水管切了…

水直接流到楼下去了,楼下很快就找上来,和我们抱怨暴力装修,打墙时弄裂他们的墙,现在又漏水下来… 让物业来说明,楼下业主才反应过来,他们请的装修师傅是个大聪明,切了管也没和业主打声招呼。造成这样的后果当然我们没责任,物业来协调,处理结果是直接用水泥堵上,墙面我们帮个忙修补一下。

也不知道该哭还是该笑了,这时完全可以要求他们恢复下水管,损坏的墙面他们自己补,为了和谐的邻里关系,忍了。

2021-10-24

做完水电就到木工瓦工漆工了,这段时间抽空回家转了一圈建材市场,把风格相关的材料基本定下来了,剩下的让家里帮买,这里提前做一下功课。

地面、墙面工艺部分

参考:

地面:

  • (铺木地板的区域)找平,一般是水泥沙浆找平,还有一种自流平
  • 厨房、阳台刷防水涂层
  • (墙面做完后)铺地砖
  • (木瓦油工之后)铺木地板

墙面:

  • 补平,用水泥沙浆修复裂缝、填沟(比如暗装的线管会开槽吧,填平这槽也在补平这步)
  • 找平
    • 工艺可以分几种:找垂平,与地面垂直;找顺平,不一定与地面垂直但墙面是平的;找方正,是针对一个房间而不是一面墙来说的,与相邻的墙都垂直
    • 不一定每面墙要做,根据现场情况判断是否需要找平,根据设计决定用的工艺
  • (如果刷乳胶漆)
    • 刮腻子,注意买带防水功能的,另外根据朋友的经验,有的师傅为了方便施工会在腻子里掺胶水
    • 刷乳胶漆,一般乳胶漆的施工方法是1遍底漆、2遍面漆
  • (如果贴瓷砖)
    • 贴瓷砖,用瓷砖胶/水泥沙浆粘贴瓷砖
    • 做美缝

参考同事的装修报价单中,发现补平、找平这部分价格并没直接列出,可能是要根据现场情况额外加钱的项目。

关于瓷砖胶,对比水泥沙浆据说能避免因为收缩带来的空鼓、粘贴低吸水率的瓷砖更牢固,另外网上有种说法,60cm以下的瓷砖出于成本考虑,可以直接用水泥沙浆贴瓷砖。

木瓦油工、安装工程的工序

参考:

这些工序交叉是比较多的,也很影响最终效果,比如地板和柜子的配合,门和地板的配合.. 这些步骤感觉很模糊。

看了大量资料,以及和卖各种商家沟通,主要的道道有:

  • 地面

    • 木地板安装效果与找平工艺密切相关,应该让木地板的商家负责把控找平工艺;在买木地板的时候,商家也主动要求找平前到现场和师傅沟通工艺
    • 注意各空间中地面的高度:阳台厨房卫生间,铺砖后地面一般下沉2cm
  • 墙面

    • 瓷砖和门的配合,贴瓷砖前一定要提前了解自己要装的门——单门套还是双门套、装在门洞的哪侧,卫生间门是金属门,一般用单门套,所以铺瓷砖的时候要留着门洞不铺,门装好之后再补上瓷砖
  • 卫生间大头的防水、回填等,别分别请工人做,因为防水可能在其他的后续工序被破坏

  • 墙面刮完腻子之后,先不刷乳胶漆,应等安装门套、柜子后再刮腻子填充边缘,再刷乳胶漆,以保证安装贴合

  • 美缝是繁琐而简单的活,人工费高,所以一些人选择自己弄

其实还了解到了很多细节,感觉再列出来也没什么意义,再次感叹靠谱的师傅能帮你省很多事。

做柜子

关于柜子的做法,做了大量功课。

柜子的计价基本是按照投影面积,比如柜子长2米高2米,就按2x2=4平米计算价格。

请谁做柜子

直接说结论:

  • 请工人做现场木工,最次
  • 找当地的厂子做柜子,最优
  • 品牌全屋定制,备选

比如木板的封边工艺,工人在现场只能做简单的机器封边,更差点的就是用塑料条封边,而且请工人的费用很高。

至于本地厂子vs全屋定制,主要是性价比的问题,问过价全屋定制1000+一平起,用的都是颗粒板,而本地工厂700+能拿到实木夹芯板(一般夹些柏木,次一点的是桉木)。

另外,本地厂子会在建材市场开门面,仔细找找就能找到,价格好谈,有的还可以送料定制。

做柜子的材料

关于材料,在人造板vs实木间,因为价格和样式的问题纠结了很久。

便宜的松木可以做到900一平,在南宁用得多的橡胶木做到1200左右一平,广州的厂子说内部用松木外部白蜡/红橡木大约1600一平,而运费因为到南宁有专线不高。

人造板,本地厂子给出的价格是,颗粒板500+一平,多层板600+,实木夹芯700+。

实木的优势当然是环保,人造板优势是性能和价格。实木,实操起来比较麻烦,一个是用便宜的松木你会担心变形之类的问题,另一个问题是风格难控制,与我装修风格比较搭的是白蜡/红橡,虽然可以让厂家拿便宜的松木改色(厂家说可以寄样,师傅可以帮调色),但还是让人对风格放不下心。

综上所述,最终还是选择了便宜的人造实木夹芯板。

瓷砖

refer:

瓷砖的工艺已经很成熟,所以也没太在意品牌和价格,随便逛逛就选了个看起来风格和材质都不错的。

风格上有设计师把控,买砖的时候照着设计师给的意向图,再让设计师帮忙选选样式,我自己只是关注了一下光面、哑面,看意向图的时候分清楚,毕竟反光和不反光的观感完全不一样。这是我选的砖(选卫生间的墙砖时没注意到是光面的):

关于填缝,贴砖的时候要注意缝隙宽度,要让师傅留2-3mm缝,还有注意缝越宽需要的填缝剂就越多,费的材料也就越多。同事给推荐了维芙美缝剂。

(2021-11-30补充)订购单:

踩了个坑,墙砖的数量弄错了,一开始给商家了地面铺装图,漏了墙面铺装图,实际上还缺了很多墙砖… 运费一次300,伤啊。瓷砖费用3590+1170=4760元。

关于铺在飘窗上的石板

这里真想骂开发商,飘窗都做得贼大,深度达到了可怕的1米,全屋的飘窗加起来10平米,导致铺设石板费用激增:

实际去建材市场看,就知道人造石和天然石在观感上的区别了,人造石的纹路比较呆板,通常只混有一种颜色,而天然石纹路很丰富,很漂亮:

人造石200-400,能看的天然石基本400起价,而且天然石因为材料特性多半需要加铁(多半脆容易裂),工艺费+100一平;算下来,人造vs天然就是3、400的差价,用量一大就很伤。

最后结合着自己的风格,选了280元一平的人造石:

2021-11-03

封窗、做阳台门

之前已经把大致方案定下来了,现在是水电做完,打算在贴砖之前把窗户量好、装好。

窗户的作用是防风、隔音、隔热,网上常见的说法是,中空玻璃,隔热可以但隔音一般,隔音要好就要用夹胶玻璃。

考虑到楼层不高,小区环境算安静,南宁冬天不冷,而且这些窗户也不是卧室窗,所以对窗户的要求并不高,用了普通的1.2mm双层玻璃配置,均带纱窗。

厨房的窗户较小,为了透风选用了外开式的窗户,其他均用推拉式。

卫生间

卫生间防水

选用本地用的多的雨虹防水,墙面和地面是分不同型号的,墙面只能用固化后硬的型号,否则会影响贴砖。

发现实体店定价和线上一样,但实体店可以讲价,所以实体店还便宜一些,不过我的卫生间小,用量不大,买了三桶,1000元不到。

记得买堵漏宝,用来填水管边缝,很便宜,可以让商家送。

卫生间回填

refers:

考虑过做二次排水,了解工艺之后觉得麻烦,也有人认为二次排水没必要做,就打消了念头。

现在使用的工艺是:

  1. 防水、闭水测试已经完成,正在装蹲式马桶
  2. 填陶粒
  3. 填充水泥沙浆
  4. 铁丝网,要求高的会用钢筋、钢网片,防下沉,我这卫生间2,3平方,无所谓了
  5. 水泥沙浆,师傅说这层混入了防水剂

卫生间和厨房地漏、以及厨房防水

refers:

地漏是在铺砖时安装的,所以在铺砖之前提前研究一下。

地漏选了最普通的不锈钢材料的,30多块一个。买的时候注意一下防臭防虫原理,如果没存水弯的话要买带水封的,现在主流设计是这种重力杠杆式:

研究了下厨房要不要装地漏,厨房不像卫生间是下沉式的,所以装地漏的位置是开发商一开始定好的,我的平面布置里,厨房柜会挡住地漏,所以选择不装。

另外在研究地漏的时候,看到厨房是否要做防水的一种观点(来源参考refers里的文章):

有地漏:必须做防水,否则厨房水槽下水爆管或者漏水损失是必须的

无地漏:无需做防水,试想,你家厨房没有地漏你把防水做那么好,一旦人不在厨房爆管,水漫金山,首先水会溢到你家客厅,如果你家客厅放置一套几十万的家具,你就惨了;其次每一家客厅是没有任何防水的,溢到你家客厅的水泡坏你的家具,继而直接泡到楼下,如果楼下也是几十万买的家具,那够你赔的,如果再次漏到楼下的楼下,你说你是不是该哭了?

再回过头,如果没有地漏我们不做防水,最多水溢到楼下厨房,最多是铝扣板和橱柜还是墙砖流点水而已,损失并不大,道个歉给人家擦一下就行。

所以,厨房没有地漏可以不做防水,一来可以省钱,最重要的是避免天灾人祸!

似乎有点道理,但仔细一想还是在扯淡,结合自己之前租房子爆水管的经验,楼板上也不是直接开了个口子往楼下灌水,如果没及时发现爆水管,水还是会流出客厅,所以还是打算给厨房做防水。

2021-11-26

这段时间很忙没空更新,当前进度已经前进不少:

  • 改墙、拆除
  • 水电改造
  • 卫生间回填
  • 阳台封窗
  • 瓦工、油工、木工…. 正在进行

关于水电改造验收

主要看看工艺是否按照先前要求的做,点位齐全了没,考虑好布的管线会不会和之后的工序干涉(特别是吊顶,比如留的电线够长了没、和吊顶的是否能配合)。

吊顶踩坑

这里我踩了一个坑,导致没能装我心心念念的双眼皮直线吊顶… 很遗憾

情况是,一开始定的工艺是边缘走线管,然后钉一圈木板,再在木板的基础上安装双眼皮石膏线,所以灯光就这样走线了:

在后面考虑吊顶时,才发现钉木板的手工费150一米,一圈做下来要3000多;还有一个补救方案是拆掉线管,直接走线,但又要返工,家里嫌太麻烦了,我也不好说什么只好妥协,毕竟在现场的是家里人。

最后选了最简单的角线:

“改成普通角线就没那么「日式」了喔” ——设计师

决定空出一间房间不做柜子等

如果房屋不出租自己居住,就需要考虑储物空间,而这间房做杂物间刚刚好,而且柜子和地柜也可以入住后添置(不像卧室二柜子要做和墙一体才好看),正好省钱了;如果房屋出租,后期再加床、柜也没问题。

回过头总结,水电卫生间后的施工方法

经过一段时间摸索,结论是:细节太多,决定让之前的水电师傅充当工头的角色,除了我们自己找人安装吊顶、铺砖,其余的都交给他来操办,也就是地面墙面和工序安排。铺砖单独找人做,是因为手上有其他人介绍的手艺好的师傅;吊顶因为足够简单,所以由商家包安装,就不需要专门工人了。

其实操作起来并不复杂,基本的原则是先把工人、主料的商家全找齐,问清楚他这步在什么之后做,在心里有个底,实施的时候再让工人反过来驱动进度。比如:

  • 木地板的商家会告诉你,地面找平前要让他来沟通工艺,否则木地板铺不平别怪他
  • 柜子、门的商家会告诉你,墙面先不刷乳胶漆,等安装柜子、门后再刮一道腻子,再刷漆
  • 贴砖的师傅会和你商量,是先地面找平还是先贴瓷砖,先贴瓷砖和门槛石再找平就能做到最好的效果,铺出来木地板能和门槛石齐平;以及瓷砖、门槛石什么时候入场,听贴砖师傅的就没问题了
  • 其他工种同理,师傅会告诉你现在该做什么,由我们来配合他就行了

至此,问题就细化成了「找什么工人、找什么商家」,工人由于我们有了工头,基本不用自己找,至于商家,我的经验是最好提前找好,否则师傅提出需求时慌慌张张跑建材市场就很被动了,提前找好的话,该网购的也可以网购。

列一些主料:瓷砖、木地板、石膏板吊顶、铝扣板吊顶、门、窗、柜子、石料

马桶买贵后,开始做预算

虽然事先做了调查,但还是买贵了。

事情是这样,师傅在做卫生间前,会和你确认要不要装蹲式马桶,因为蹲坑在回填的时候就要安装了,所以就急急忙忙去建材市场买了蹲式马桶,蹲式马桶是便宜,线下买的九牧也是500多,然后老板同时给推销座式马桶,在付款的时候我家老妈没抗扛住推销,连着座式马桶一起定了,打包价格2000块。

回头在线上看同品牌类似款式,只要600-700元,贵了近1000元;虽然看文章有说法,线上线下的型号和货是有差别的,但还是觉得买贵了。

这事之后,就在手机上开了个 Excel 表格,提前把能考虑到的开销先做好预算,以防类似情况再次发生,同时在装修过程中也能对开销心里有数:

装到现在也基本能看清费用了,顺利的话,这100平的小屋子能在13万左右装到能入住的状态。

2021-12-05

瓷砖基本贴完了,石膏板吊顶开始入场安装,刷墙师傅也就绪了,准备做地面找平。照这个速度,月底能基本完成木油瓦阶段,

开始飞速烧钱的时候,之前的13w预算其实少了,可能最后装出来会往15w靠,手工和材料都算少了,还漏了部分项目。

瓷砖基本完成

这里踩了个常见的坑,订瓷砖的时候,只给了商家地面铺设面积,墙面铺装面积是商家自己估计的,当时也是粗心没自己核数量,导致瓷砖数量还差了挺多。

于是又找商家补瓷砖,补瓷砖是小,运费又再出了一次,补几个砖花了280元运费,很肉疼,所以买瓷砖的时候尽量一次算准来。

另外贴砖师傅说,商家一般会免费补送一次砖,这点要在买瓷砖的时候谈好。

顺便,师傅加班加点做了一周多,瓷砖已经基本完工了,所以手工费也得出来了,比预想的要高了点:

关于纱窗

开发商给的窗没配纱窗,需要自己额外装,预算中漏了这项,又多花了近3000元。

看了现行的多种纱窗种类这篇文章,自己的窗是外开式的,所以只有「三段式」和「内开式」的加装纱窗可选。

商家说装得多的是三段式的,感觉很丑,好好的窗口被遮挡很多,也没什么特别好的办法,随它去吧,就要求换了个不锈钢原色的网尽量让光线更好些。

卫生间的纱窗是推拉式的,好解决,定做能装在原有轨道上的纱窗即可,也很便宜。

修改厨房天花板方案

厨房是敲掉小阳台的墙后扩宽的,所以这里留下了一条梁:

之前打算直接铝扣板拉平,厨房净空还能有2.4米,现在想到了更好的办法,用铝扣板把包梁,这样就能为厨房多争取点可怜的高度:

关于工艺,问了商家说是可以解决,说半包梁要求手工高,每米加100元,自己搜了图片,应该是这样做:

安装现场:

高度上去了,效果确实舒服:

有朋友吐槽说这厨房配色像卫生间,是因为柜子还没做上,被方格子和灰地板抢了镜…

2021-12-24

说说最近情况,主要还是没经验导致的进度缓慢:

  • 铺砖师傅说先铺砖再找平比较好,就推迟了地面找平–>门和柜子的尺寸都没法量
  • 吊顶早该找人做了,一直拖着–>墙面施工没法做
  • 中途决定要换一扇窗,也拖累了整体进度

2022年的春节是2月1日,订门定窗最好在那之前搞掂,得加速了。

把防火窗更换了

高层住宅都要求有避难间,并安装防火窗,要求能耐火一小时;在开发商这给配的就是质量很差的防火窗,铁框上的漆没几年就掉了,玻璃也有漏防火液和发黄的问题。

换窗按理应该在做完水电之后,和着封阳台一起做的。但当时觉得更换窗户是容易的事,入住后等窗户出了问题再换都行,反正想把这间房留着当作储物间,窗户贴半透明磨砂贴纸遮丑就不管了。但装修过程中,业主群里时不时有人抱怨防火窗的问题,除了会漏液和发黄,还有锈蚀和漏雨的问题,最后还是决定更换。

此前已经和物业沟通过换玻璃的问题,然而只换了部分玻璃:

选择了铝框+普通双层中空玻璃,拆除费用1000,窗户3500。装了铝框还没装玻璃:

玄关处下水管的美化方案

玄关是入户小阳台改的,阳台自然有雨水的下水管,直接外露会丑

楼上楼下有的做PVC包管,有的是漆砖贴瓷砖。考虑入户处停留时间不会太长,就不做包管了。

  • 在这片区域增加吊顶,遮住水管上部的回水弯
  • 水管本体缠点麻绳就完事了,再做点挂钩,充当挂衣架

做好的石膏板吊顶:

吊顶施工

之前说过水电师傅是贯穿全程的工头角色,在考虑做吊顶时,他推荐了专门的木工;跑了市场,和商家沟通发现轻钢龙骨石膏板吊顶通常是商家帮安装的,而且只需要一两天就能安装完毕,所以不需要额外请木工。

注意这里被商家坑了一道,送来石膏板都是零碎的小块,导致填缝操作困难,之后也可能漆面开裂… 商家的说法是小块方便运输,事实上只要多出50元运费就能解决问题,没和我们商量就配的小块,合理怀疑是用剩的边角料..

施工墙面

吊顶做完了就可以做墙面了,和师傅谈好价格15元一平人工,包括刮腻子、刷乳胶漆,阴阳角补强另外算钱;和工人谈的时候,注意说清楚工艺,腻子至少刮两次、乳胶漆按照具体的漆要求的施工工艺。

关于腻子,师傅推荐的是广西本地的品牌,选了18kg一包40多元的耐水防霉腻子。

师傅说本地的耐水腻子难施工,但效果比大品牌腻子要好,有些人要求不高,用了耐水腻子之后就不刷乳胶漆了,就是不耐脏

粘粉用于补小面积瑕疵;网格用于防裂,自己砌的墙都要糊上;这里提一下PVC阴阳角线,作用是保护阳角、以及让阴角平整美观:

之前的石膏板吊顶已经上了第一遍腻子:

地面找平的坑,让我踩着了

这里先提醒大家,铺砖之前先给地面确定一个基准高度,留够找平+木地板的高度。根据师傅说法,毛胚房楼板的整个落差超过3cm都正常;不能想当然地铺砖,不然最终地砖、门槛石、木地板的高度都是不可控的。

踩着了个大坑,铺了砖和门槛石之后才发现,地面上的一些管线找平之后快高过门槛石了,装了木地板肯定要超过门槛石,而之前计划是门槛石都与木地板齐平、盥洗间以外的地砖都比门槛石低2-3cm:

其实当时已经意识到没做标高会有坑了,但想着可以在铺瓷砖时,让工头和它沟通高度,但他明显没沟通清楚。这大概是装修下来遇到的最严重的问题了,看后面怎么解决。

附,《装修入门-02:施工水平线》:

via:https://zhuanlan.zhihu.com/p/82065695 by 逆游的鱼

2022-03-27

好久没更,主要是真的忙,装修还是在继续的,目前已经完成硬装部分了。

装修进度,工期拉得很长,中间隔了个春节,正好2月份辞职回南宁准备入职新公司,本来不确定是要出租还是自用的房子,现在敲定了要自己住了,安装阶段都以自己住为基准去选物件,费用会比最初预计的高些。

装修贷款的问题

装修贷的利息算下来和房贷差不多,手头紧是可以考虑办一个的,额度给得高得离谱。

贷十万元,一个月手续费250元,本金分期在还,但手续费是每期都不变的,所以越晚还就越不值当:

1
2
假设贷10万元,分5年期(60期),第2年年底一次还清剩余本金,则:
n个月利率=250/(100000-100000/60*n)

可见比较好的贷法是,分5年期,两年就还清。

建行的装修贷要求两次工作人员现场拍照,第一次是毛坯房状态,第二次是刷完墙贴完砖,以证明确实是在装修。

打算办贷的话要趁早。

木地板选购安装

市面上复合木地板大概就几种:

  • 纤维板(强化板):就是碎木纤维加胶水压起来,再夹上纹路和保护层的地板,很便宜
  • 多层实木复合板:把中间的纤维,换成多层薄实木, 约70、80元
  • 芯三层板:中间夹的是一层实木,一般是夹松木,目前120左右

综合考虑,选了芯三层板,老板包了实木地脚线120元一平。

灯具选购和安装

灯光购买需要注意的参数:照度、色温、显色指数。讲究很多,网上文章已经很多了,灯光对最终效果的影响真的很大,建议多看几篇文章再下单。

简单给个我的 check list:

  • 对于这个空间,亮度够吗,色温合适吗
  • 环境湿度如何,安全吗
  • 光弧的角度如何,能照清想照亮的区域吗,使用时光线会不会被遮挡
  • 显色指数大于90了吗

再附 tips:

  • 买吸顶灯、吊灯时,可以先考虑造型,之后再买灯珠
  • 关于筒灯:用灯带+柔光板拼出来的灯,和COB射灯的效果真的相差很多,灯珠拼起来的灯的效果就一般,COB灯的光弧很漂亮,当然价格也更高
  • 智能控制灯的溢价确实高了,可以考虑用普通灯来改造,控开关可改智能通断器,控亮度和色温可以改灯光控制器

装灯后的效果:

关于自己动手做美缝

时间充足可以考虑自己做,毕竟一米15-20元的手工费不便宜,但不要低估了做美缝的工作量:清缝、填缝、压缝、铲除余料。

生手怕是得预个半周一周的工作量,而且费腰…

我是打算全都自己做了,目前做了会被柜子、水池遮挡的部分,效果尚可,打算入住之后再慢慢做完剩下的,穷,省钱嘛,不急..

厨房柜定做

厨房柜贯穿整个厨房设计,在水电改造前,就要确定大致布局,而安装是放到最后做的,所以如果前期考虑不全,厨房柜就会受到影响。

早期定水电方案的时候,就已经跑了几个建材市场,最后选定了一家做石料厨房柜的,价格谈下来,地柜、吊柜、高柜都在700一米左右,柜体做完6000左右(粗算台面4m+吊柜2m+高柜2m),完全能接受,就下了定金。配置是:

  • 台面:人造石英石板
  • 柜体:花岗岩板+部分外贴石英石板
  • 柜门:晶钢门,就是玻璃+铝型材
  • 吊柜:人造多层板

厨房铺好砖做好美缝、做好吊顶之后,选好嵌入式电器,就联系橱柜老板上门量尺寸,没两天就给出了初步设计方案:

讨论方案之后得到的最终稿:

关于水槽,单槽、双槽的选择问题,网上主流观点是大单槽好用,因为能放下大锅,洗菜就用能架在水槽上的菜盆
我的建议是得根据自己厨房水槽区域大小,以及个人做菜习惯来定,在我心里大双槽>大单槽>小双槽
大双槽是能放下大多数锅的,像我就习惯多线操作,边洗菜边做菜,大双槽更适合我,当然前提台面空间够用

然后是确定风格,设计师给了几张参考设计,直接对着色板抄作业就好:

石料虽然会预加工再送到现场,但实际上安装时还是需要切割微调的,所以现场会弄得很脏,注意保护地板、和已经入场了的家具。

师傅会用胶水粘花岗岩石板,而台面上的人造石英石板,是用普通的封胶,这种胶最多能撑三年。

现场安装,两个师傅花了一整天,做出来效果,还是挺满意的:

让师傅顺带把油烟机挂上了,多花点手工费,与吊柜间的缝隙小一点,最后厨柜一共7040元:

  • 厨柜立柜吊柜6080元
  • 水槽420元含安装
  • 拉篮390元+安装50元
  • 油烟机安装100元

很多人觉得花岗岩柜体丑,其实是它是大面积外露造成的,实际上可以用粘贴石英石的方式遮丑来解决(比如图里的脚线)。

最后总结,厨房这里还是踩了几个坑的:

  • 立柜左右两边的板做得特别厚,其实是立柜背后的插座位置过于靠外的补救措施… 设计师的尺寸标注出问题了
  • 吊柜被迫做得很深,因为烟道的止逆阀的位置太靠外,包管时应顺便改造
  • 台面的插座还是没留够,尤其是窗边的角落,热水器占了一个插座之后,就只剩一个插座了
  • 烤箱位的背面每留足够的散热孔,到时候用到再自己开槽了

燃气和用气设备安装

燃气相关的东西确实很麻烦,办业务跑了几次,师傅上门几次,要是没搞过的话确实一头雾水,我梳理一下流程,心里好有个底才不会手忙脚乱:

  1. 小区会帮统一报装,就是说燃气已经拉到你家阳台了,但你还用不了
  2. 去燃气公司的营业厅办理开户,预交开户、装表、拉管费用(花了700元)
  3. 做水电改造时,燃气公司上门,如果需要改造人户管道的位置,就要在这时改,让师傅留下暗埋的管道
  4. 厨房贴砖后,安装燃气表,才能装厨柜
  5. 装好橱柜后,安装燃气灶、热水器,热水器安装挺麻烦,各种耗材和手工费普遍要收个两三百,师傅会帮你开具合格证
  6. 有了合格证后,就可以和燃气公司申请开通用气设备了(燃气公司接燃气灶的一根40cm的管,收了50元)

说起来现在的燃气表是NB-IoT的,要用户半年换一次电池,网上充值后一天后到账
当时在老东家做智能水表方案时就感叹,智能气表早就遍地开花了,要求真低,半年换一次电池都能接受,而水表要求不换电池工作十年以上…

厨房总结

厨房算是折腾清楚了,可以写一组 tips 了:

  • 厨柜设计很重要,决定了其他所有物件的位置,最好在早期就让橱柜老板介入,帮忙现场测量,帮设计(当然你像我一样愿意花大把时间在上面,也可以早期自己弄好)
  • 插座位置在施工前,请再三确认位置、数量是否合理,最好列一张表,哪个地方用到什么电器
  • 注意烟道的止逆阀的位置,是否可以被吊柜遮住(一般吊柜深45cm)
  • 有些小伙伴觉得洗碗机可以当碗柜,不是这样的,因为洗碗后不一定能彻底烘干,能放三天的洗碗机都敢说自己能长期存放了
  • 现在流行的,可以拉伸的厨房水槽花洒,回位靠的是水管上绑着的配重块,想要装这种花洒请注意分配台下空间,否则配重块可能卡到其他东西,导致复位失败
  • 高柜是个好东西,能把嵌入式电器叠起来,空间利用率MAX
  • 做网络规划时,注意厨房的无线网络状况,很多人的厨房厕所都是没信号的
  • 厨房的装修很复杂,但步骤还是跟着装修主要步骤走的,很清晰:
    1. 墙体改造、窗户改造
    2. 水电改造,把该埋墙里的埋了,水管电管煤气管
    3. 铺地砖墙砖,打热水器的排气管的洞
    4. 装铝扣板吊顶,叮嘱做龙骨时,给热水器排气管留好安装空间,让后面的安装师傅好操作没
    5. 装燃气表,装橱柜,装用气设备,接燃气管,开通燃气

家具购买

抱着买回来提前买回来散味的心态,铺完地板我就开始订家具了,顺便看看材质颜色,方便和后面的定制家具统一风格。

成品家具的线上线下价格差很多,家具城卖得很贵,逛了一圈就劝退了,有朋友推荐去佛山顺德现场自己挑,但疫情考虑,还是直接线上买回,省事。大概套路:

  1. 风格确定:建议在早期,确定装修风格的时候,就稍微出去逛逛、看看某宝了解大致价格,能接受再确定风格。
  2. 款式调查,可以去家具城看看商家图册,有些新的设计会给你灵感
  3. 材料确定:选中的风格是原木风嘛,能接受的价格区间的材料,主要就是白蜡、橡木
  4. 确定了材料,大致摸索了下,这类材料家具的主要出产地,一个是佛山,一个是青岛,所以在某宝购买时直接忽略掉了其他产地
  5. 尺寸最好去装修现场比划一下再定(比如我的餐厅较小,桌子的尺寸在1.2m还是1.4m间犹豫,去现场比划了下才定下)

多嘴一句,买家具时还是要多代入使用场景,比如我这:

  • 餐桌桌面选岩板更适合懒人,耐磨、锅多烫都不用桌垫
  • 开放式书架,打扫卫生肯定难
  • 餐边柜其实不怎么具实用性,买来主要为了装饰

衣柜鞋柜定做

之前说到选择在本地的家具厂定做柜子,叫师傅上门量尺寸,很快就出初稿设计了,和设计师讨论修改了两稿之后成型:

鞋柜:

  • 留活动层板,适配不同高度的鞋子
  • 下方收纳常用鞋,到家后直接踢进去
  • 百叶门通风散味

衣柜:

  • 上方收纳被子
  • 主要做挂衣区,如果需要其他方式的收纳,再另外灵活购置
  • 少量抽屉,用来放袜子、内裤

设计思路一搜一大把,还是要根据自己习惯来分析

最终效果原木色偏红了,显得比较重口味,成品家具都是红橡和白蜡,都是发白的比较清新点,不过问题不大,定制柜外露的原木色不算多,不抢镜头就OK。

门安装

卫生间门

卫生间门是单边门套,门套有一截金属腿,通过打钉的方式嵌进墙体来固定,所以贴砖师傅会留一条砖不贴,等门装好之后,再让贴砖师傅来收尾,把们洞那一条瓷砖补上。

普通木门

木门的木制双边门套就简单了,直接在裸的毛坯墙面上装了就是:

你看正对的这门缝,一边高一边低,就是地平没做好导致的!看后面木地板师傅装压边条的时候,有没有办法补救..

推拉门

书房推拉门只有1.45m宽,对半只有不到0.7m,所以做了三扇门三联动,要注意三联动造价很高,因为一块门板最少按1.5平算,三块就是4.5平,这扇门才三平,要价近4000元(不过两扇的推拉门也不便宜)。

没做门套直接嵌,边上狗啃的缝要等刷墙师傅来修了,还是觉得做门套好看点,就是花钱啊…

盥洗间布置

我的公卫盥洗间做得稍极限了——设计师留了70cm的宽度,陶瓷盆的尺寸都不标准,标60cm的通常到手是61-62cm不等,想象中62cm的盆+5cm的木屏风,预留3cm余地,完美。

但现实再次骨感了,砌墙师傅墙体稍微砌歪了点,去掉墙面贴砖,只有63.5-64.0cm可用宽度了,陶瓷盆+木制屏风的组合,肯定是没法用了。

差点打算不装屏风了,然而一日在某宝瞎逛,让我找到了岩板+台下盆的组合,可以做到精确60cm宽,加上宽3cm的铝合金屏风,正好塞下63cm的宽度。安装上洗手池,准备等做了木地板压边条再定屏风:

由于墙是歪的,水池靠墙安装留下了很大的缝,安装小哥很贴心地没直接打玻璃胶,让我后面用美缝剂填,因为玻璃胶最多用三年..

这里吐槽一下天猫的安装服务,付费105元,师傅到手只有56元,让中间商赚走了近一半,不愧是互联网公司…

硬装的开销

目前已经基本完成硬装,开销已经能算出来了:

装下来发现,基础的硬装的变量主要在门、窗、柜上:

  • 窗户要求高的,面积一累上去,花钱不要太容易
  • 厨房柜、定制家具,如果选品牌的,单价高、收费名目多(材料倒一般),花钱也很容易
  • 当然想多花钱是相当容易,天然石材实木柜子、硅藻泥、地暖新风

100平的设计面积,设计+硬装共花13000+,平均每平1300;而接下来的家具电器软装,目前还没看到个头。

等装完地脚线,就可以打扫卫生、摆放家具了,到时候放放硬装整体效果。

2022-07-01

这段都很忙一直没更,现在安装工作已经完成,家电也差不多买齐了,因为木器入场得早,相当于通风几个月了,所以已经是可以入住再慢慢折腾的状态了。

窗帘安装

家具摆上

家电安装

坑:师傅没按照的要求布置开关

坑:2匹以上空调需要安装独立空开

坑:装完洗衣机才发现下水堵了,全是装修时的沙子和碎渣

网络布置

书房布置


装修还在继续,日志持续更新…
目前处于流水帐状态,完工后再整理成专题